Eskiás 4A

Garðabær / Garðabæ

Mynd 1
Skoða myndir
  • Baðherbergi
  • Baðherbergi
  • Baðherbergi
  • Baðherbergi
Mynd 1
Baðherbergi
Baðherbergi
Baðherbergi
Baðherbergi
Baðherbergi
Skoða myndir

Laus til leigu, glæsileg 3ja herbergja íbúð!

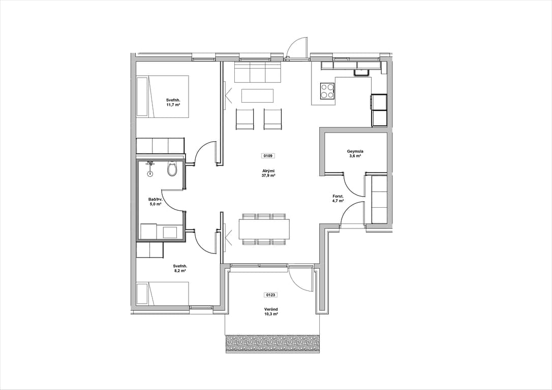
Velkomin inn í nýlegt og vandað 84,4 fm heimili að Eskiás 4, Garðabæ. Íbúðin er á jarðhæð með sér inngangi.

Eskiás er í vel staðsettu hverfi og stutt er í alla helstu þjónustu, leik,- og grunnskóla, íþrótta og útivistarsvæði. Staðsetningin er einnig örstutt frá megin ökuleiðum.

*Húsgögn fylgja ekki íbúð, myndir eru að sambærilegri íbúð.

Nánari lýsing

Gengið er inn í íbúðina í rúmgóða forstofu með fataskáp, úr forstofu er gengið inn í opið og skemmtilegt rými þar sem eldhús og stofa mynda sameignilegt alrými. Gengið er út á verönd inn í sameiginlegan inngarð hússins. Eldhúsið er með miklu skápaplássi og fallegri eyju.

Í íbúðinni eru tvö rúmgóð svefnherbergi, baðhergið er með upphengdu salerni og sturtu, þar er einnig tengi fyrir þvottavél og þurrkara. Sér 3,6 fm geymsla er innan íbúðar.

Gardínur, ísskápur og frystihólf fylgir eigninni.

Í sameign er hjóla,- og vagnageymsla. Öll bílastæði við Eskiás eru sameiginleg og rafbílahleðslukerfi verður sett upp.

Djúpgámar eru staðsettir við húsin og gert er ráð fyrir fjórflokkun úrgangs. Allar íbúðir eru með aðgengi að inngarðinum þar sem skjólsælt er og einnig eru leiktæki þar fyrir börnin.

Leiguverð og kostnaður

Leiguverð er 380.000 kr á mánuði og er tengt vísitölu.

Innifalið í leiguverði er hiti ásamt rekstri á sameign.

Leigutaki greiðir fyrir rafmagnsnotkun samkvæmt mæli.

Skilyrði fyrir leigu

Leggja þarf inn umsókn með lánshæfismati og sakavottorði.

Trygging eða ábyrgð sem nemur þriggja mánaða leigu.

Hægt er að vera með tryggingu lagða inná reikning, bankaábyrgð frá þínum viðskiptabanka eða Leiguskjól.

Upplýsingar

Laus:

3 Herbergi

2 Svefnherbergi

1 Badherbergi

84,4 Fermetrar

Íbúðanúmer:109

Ívera @ 2026 Allur réttur áskilinn